Project Description
ATAPOL AKIIF POLAT BUSINESS CENTER
Atapol Akif Polat Business Center
Apartment Features
– Modern curtain walling and composite cladding
– Granite stairs
– 8 person fully automatic double speed GM brand elevator
– Aegean ceramic brand ceramics
– Fire alarm and extinguishing system
– Hydrafor
– Water tank
– Specially designed warehouse entrance for easy unloading and loading
– Garden lighting
– Indoor parking garage (Access to the floors by elevator from the parking garage)
– Shingle roofing over steel construction
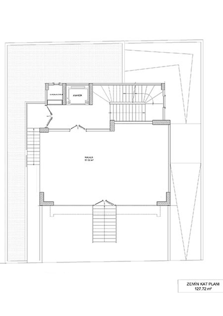
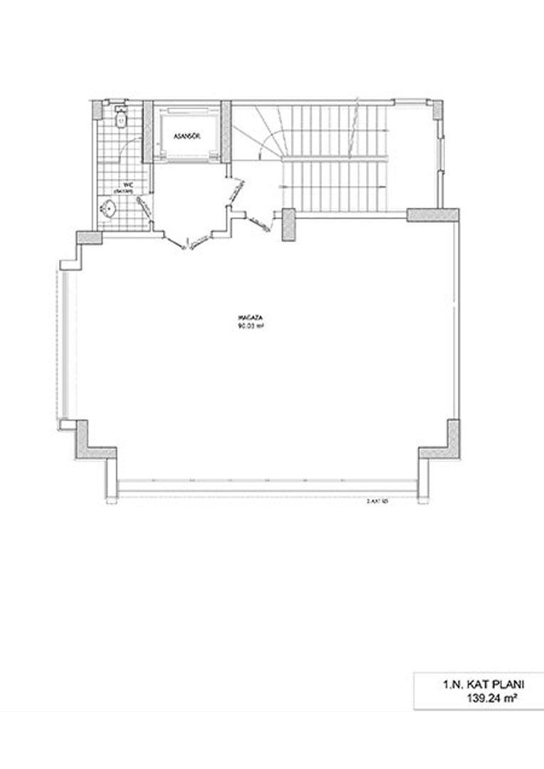
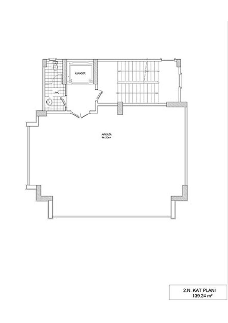
Pictures
Project Details
AREA
Şerifali, Istanbul
STARTING DATE
2013
FINNISHING DATE
2014
PROJECT GENRE
Business Center, Completed Projects








